Menu
Un projet réalisé par :Playtime Agence d'Architecture

Extension et rénovation d'une maison à Caluire

Playtime Agence d'Architecture
Accueil Projets Extension et rénovation d'une maison à Caluire

-Commune : Caluire
-Surface: 55 m²
-Budget HT : 120 000 euros


Extension et rénovation d'une maison à Caluire

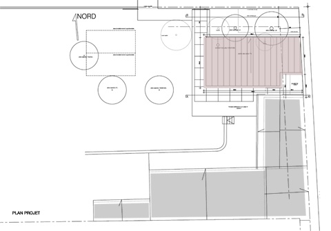
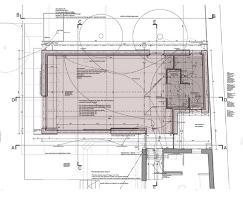
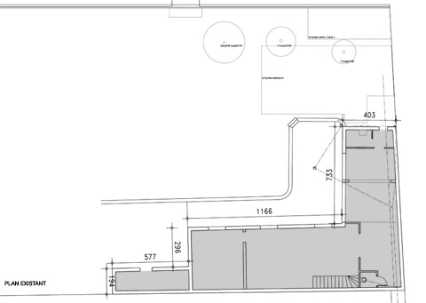
Le projet d’extension de la maison consiste à réorienter le bâtiment par rapport à l’ensoleillement. Il s’appuit sur le mitoyen, tout en ménageant une courette visant à éclairer les nouveaux espaces ainsi que les pièces existantes. Le projet est construit en ossature bois et revêtu en bardage en mélèze afin de s’intégrer au mieux dans le fond de parcelle.

  • Extension et rénovation d'une maison à Caluire : 01_Extension et Rénovation Maison Caluire
  • Extension et rénovation d'une maison à Caluire : 02_Extension et Rénovation Maison Caluire
  • Extension et rénovation d'une maison à Caluire : 03_Extension et Rénovation Maison Caluire
  • Extension et rénovation d'une maison à Caluire : 07_Extension et Rénovation Maison Caluire
  • Extension et rénovation d'une maison à Caluire : 05_Extension et Rénovation Maison Caluire
  • Extension et rénovation d'une maison à Caluire : 06_Extension et Rénovation Maison Caluire
  • Extension et rénovation d'une maison à Caluire : 08_Extension et Rénovation Maison Caluire
  • Extension et rénovation d'une maison à Caluire : 09_Extension et Rénovation Maison Caluire
  • Extension et rénovation d'une maison à Caluire : 10_Extension et Rénovation Maison Caluire
  • Extension et rénovation d'une maison à Caluire : 11_Extension et Rénovation Maison Caluire
  • Extension et rénovation d'une maison à Caluire : 12_Extension et Rénovation Maison Caluire
  • Extension et rénovation d'une maison à Caluire : 13_Extension et Rénovation Maison Caluire

Trouvez un architecte pour votre projet

Protection de vos données personnelles

Depuis toujours, architectes-france.com ne transfère aucune donnée personnelle à d'autres acteurs que ceux directement concernés par le projet (architectes, architectes d'intérieur...) et qui appartiennent à son réseau. Nos listes ne sont jamais transmises ou vendues à des partenaires extérieurs, même si ceux-ci appartiennent au domaine de la construction.
Toute modification dans ce domaine ne serait effectuée qu'avec votre consentement.

Je consens à ce que mes données personnelles soient collectées pour permettre à architectes-france de transférer votre projet aux architectes. Seul Architectes-france, ses équipes internes et la maitrise d'oeuvre concernée par le projet y ont accès. Aucune transmission de données à des tiers à l'exclusion de ceux décrits ci dessus n'est réalisée.

Mes données téléphoniques seront uniquement utilisées par Architectes-france.com et les architectes de notre réseau dans le cadre de la qualification et du suivi de mon projet.

Les données sont conservées pendant une durée de 18 mois courant à partir des derniers contacts effectifs entre architectes-france et vous ou architectes-france et un membre de la maitrise d'oeuvre en rapport avec ce projet et qui serait en relation avec architectes-france.

Conformément à la loi « informatique et libertés », vous pouvez exercer votre droit d'accès aux données vous concernant et les faire rectifier en contactant : Architectes-france, 23 avenue du Mirail - parc du Mirail - 33370 Artigues-près Bordeaux. Tél. 05.47.74.51.01 - contact@architectes-france.com

Trouvez un architecte pour votre projet

Protection de vos données personnelles

Depuis toujours, architectes-france.com ne transfère aucune donnée personnelle à d'autres acteurs que ceux directement concernés par le projet (architectes, architectes d'intérieur...) et qui appartiennent à son réseau. Nos listes ne sont jamais transmises ou vendues à des partenaires extérieurs, même si ceux-ci appartiennent au domaine de la construction.
Toute modification dans ce domaine ne serait effectuée qu'avec votre consentement.

Je consens à ce que mes données personnelles soient collectées pour permettre à architectes-france de transférer votre projet aux architectes. Seul Architectes-france, ses équipes internes et la maitrise d'oeuvre concernée par le projet y ont accès. Aucune transmission de données à des tiers à l'exclusion de ceux décrits ci dessus n'est réalisée.

Mes données téléphoniques seront uniquement utilisées par Architectes-france.com et les architectes de notre réseau dans le cadre de la qualification et du suivi de mon projet.

Les données sont conservées pendant une durée de 18 mois courant à partir des derniers contacts effectifs entre architectes-france et vous ou architectes-france et un membre de la maitrise d'oeuvre en rapport avec ce projet et qui serait en relation avec architectes-france.

Conformément à la loi « informatique et libertés », vous pouvez exercer votre droit d'accès aux données vous concernant et les faire rectifier en contactant : Architectes-france, 23 avenue du Mirail - parc du Mirail - 33370 Artigues-près Bordeaux. Tél. 05.47.74.51.01 - contact@architectes-france.com